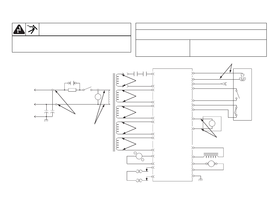
Powermax190c 120 vca, diagrama de cableado, Página 5 advertencia – Hypertherm Powermax190c Troubleshooting Guide User Manual
Page 9

(L1)
1
(PC1-HS2)
2
22
20
RC1-8
RC1-7
3
4
YEL
YEL
YEL
CONT
+
PRE-CHG
RC1-10
12
11
1
86
85
2
43
10
9
B
A
1
CR
RC12
BLK
BLK
18
17
16
15
14
13
8
7
6
5
BLU
BLU
1
2
YEL
2T
1T
87
30
2
1
+
BLK
RED
21
LT BLU
LT BLU
VIO
VIO
RED
BLK
WHT
+
3T
RC9-2
RC9-4
RC5-2
RC5-1
AIR
COMPRESSER
RC2-1
RC2-2
AC
RC11
RC9-1
RC9-3
RC1-4
RC10-1
RC1-5
RC1-6
RC1-3
2
1
1
1
CR
1
CR
1
3
T1
BLK
GRN
WHT
DOMESTIC MODELS (120VAC)
INPUT
POWER
CUP
SWITCH
TRIGGER
TORCH
PILOT
ELECTRODE
WORK
RC3-1
RC4-4
RC4-3
RC6
RC4-2
RC4-1
PC1
POWER CONTROL
RC1/PLG1
RC2/PLG2
RC3/PLG3
RC4/PLG4
RC5/PLG5
RC6/PLG6
RC7/PLG7
RC8/PLG8 TEST
RC9/PLG9
RC10/PLG10
RC11/PLG11
RC3-2
RC1-1
RC1-2
RC10-2
RC7
TP
TP
L
CR
CR
R
C
C
FM
S
V1
V2
V8
V9
V7
V6
V5
V4
V3
Powermax190c 120 VCA, Diagrama de Cableado
página 5
ADVERTENCIA
PELIGRO DE ELECTROCHOQUE: Siempre apague y desenchufe el
cable o coloque en “OFF” (apagado) el interruptor del disyuntor de
línea antes de revisar la unidad o cambiar las piezas consumibles.
Lectura de Voltaje
a) Tolerancia ±10%, a menos que se especifique
b) Referencia – a circuito común, cable de salida 43, a menos que se indique
V1
120 VCA
V7
24 VCA
V2
120 VCA
V8
12 VCD
V3
227 VCA
V9
335 VCD (voltaje en circuito abierto)
V4, V5, V6
20 VCA