Installation, Installing the fireplace shell, Framing – Montigo MD38 DV2 User Manual

Page 3: Clearances

Advertising
background image

Page 3

MD38-DV-2 Homefire

Part No. XG0111

Installing The Fireplace Shell

The fireplace may be installed in any location that maintains proper
clearances to air conditioning ducts, electrical wiring and plumbing.
Safety, as well as efficiency of operation, must be considered when
selecting the fireplace location. Try to select a location that does not
interfere with room traffic, has adequate ventilation, and offers an
accessible pathway for Direct Vent installation. Refer to page 4 -

Vent

Installation for more information.

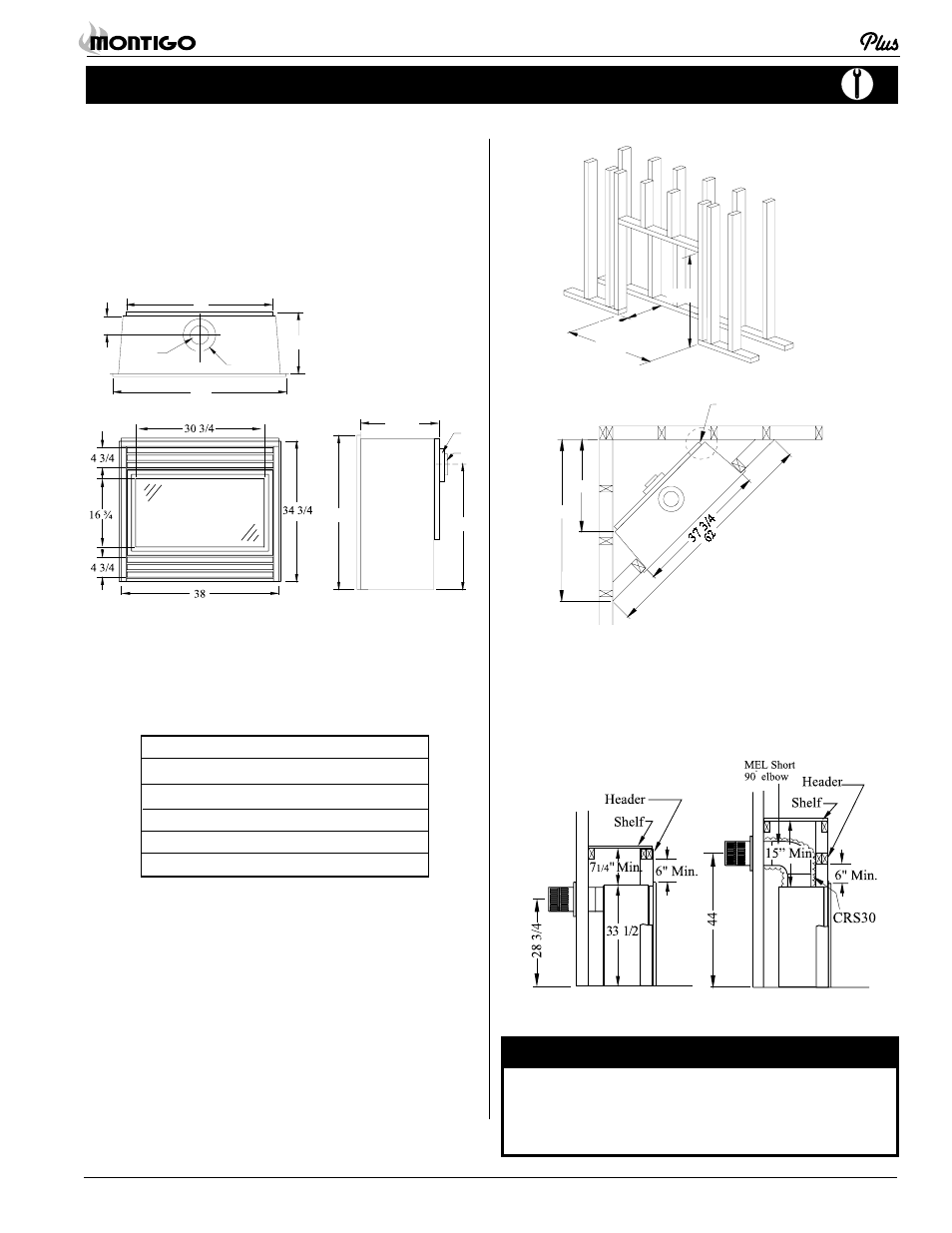
The fireplace dimensions are shown below:

Installation

Figure 3.

Corner framing dimensions.

Figure 2.

Framing dimensions.

* When sheetrock is
not used behind the
fireplace, framing
depth may be
reduced to 14 3/4"

37 3/4

15 1/2

40 3/4

43 7/8

24 1/8

0" clearance
to corners only

Framing

WARNING:

When this appliance is installed directly on carpeting, tile or any
combustible material other than wood flooring, it must be installed
on a metal or wood panel extending the full width and depth of
the appliance.

14 3/4

38

33

Ø7

C

Ø4

5 1/2

Top Vent

14 3/4

28 3/4

34 3/4

Ø7

Ø4

Front View

Rear Vent

Clearances

These clearances apply to all dimensions

except the framed opening,

where the clearance to combustibles is 0". The MD38-DV-2 clearances
to combustible materials are:

Top - Rear Vent*

7 ¼"

Top - Top Vent***

32"

Back

0"

Side

1 ½"

Floor

0"

Mantle**

12"

*

Clearance from the top of the fireplace to a combustible
ceiling within the fireplace enclosure.

** Refer to page 10.

*** If the standard elbow (MEL90) is used with the Low

Clearance Sleeve (CRS30) the Top Clearance is 15".

If the Low Clearance Sleeve (CRS30) is NOT used
over the elbow, the Top Clearance is 32".

Figure 1.

Fireplace dimensions.

When installing a shelf over the top of the fireplace, the following
guidelines must be adhered to: For Rear Vent models (MD38-DR-2),
the minimum clearance from the top of the fireplace to a shelf is 7 ¼".
For Top Vent models (MD38-DT-2), the minimum clearance when
using the CRS30 is 15". (

Minimum 1" clearance must still be maintained

around the vent pipes.)

Top Vent

Rear Vent

Figure 4.

Framing for shelves over the fireplace.

Unprotected combustible walls which are perpendicular to the
fireplace opening, must not project beyond the shaded area shown in
Figure 19b.

For protection against freezing temperatures, it is recommended that
outer walls of the chase be insulated with a vapour barrier. This will
reduce the possibility of a cold-air convection current on the fireplace.

Advertising
This manual is related to the following products: