Repair - disassembly – MovinCool 24HFU Service Manual User Manual

Page 33

Advertising
background image

MOVINCOOL 24HFU / 24HFU-1 SERVICE

PAGE 33

REPAIR - DISASSEMBLY

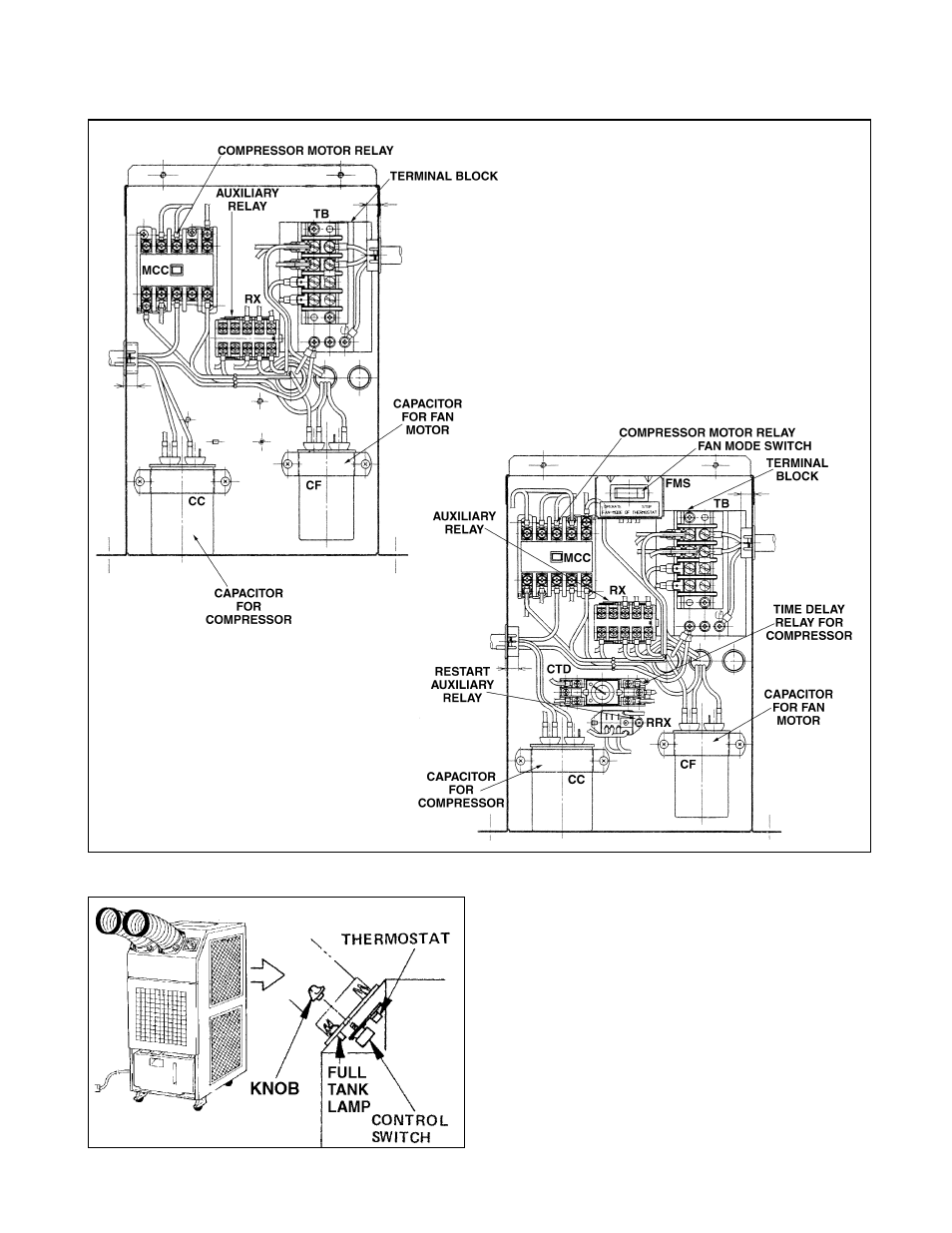
3-2-2.

Remove the electrical parts in the control box.

Removal of Electrical Parts in the Control Box

3-2-3.

Remove the control switch and full

tank lamp as shown in figure.

Removal of Control Switch

24HFU

24HFU-1

Advertising
This manual is related to the following products: