Manuals
Directory
ManualsDir.com
- online owner manuals library
Search
Directory
Brands
Progressive Turf Equipment manuals
Gardening equipment
TDR-30
Manual
7 wing deck assembly – r.h, Ssembly – Progressive Turf Equipment TDR-30 User Manual
Page 60
Text mode
Original mode
Advertising
TDR 30 Parts Manual
12
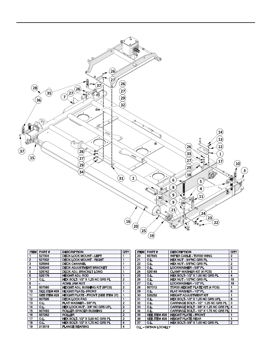
1.7 Wing Deck Assembly
– R.H.
02/2015
Share
Pages:
1
…
58
59
60
61
62
…
88
Download
Complain
wrong Brand
wrong Model
non readable
Advertising
See also other documents in the category Progressive Turf Equipment Gardening equipment:
SDR-90 10365047 to 13365072
(23 pages)
TDR-12 Up to 1212029
(71 pages)
TDR-15 0915001 to 1215106
(74 pages)
Pro-Flex Roller 120
(78 pages)
SDR-65 Up to 09365046
(10 pages)
Pro-Max 36
(63 pages)
522407
(5 pages)
522427
(2 pages)
526494
(1 page)
PM36
(5 pages)
600501
(3 pages)