KACO Powador XP500-XP550-HV TL User Manual

Page 12

Advertising
background image

Page 12

Operating Instructions Powador XP500/550-HV-TL

Unit Description

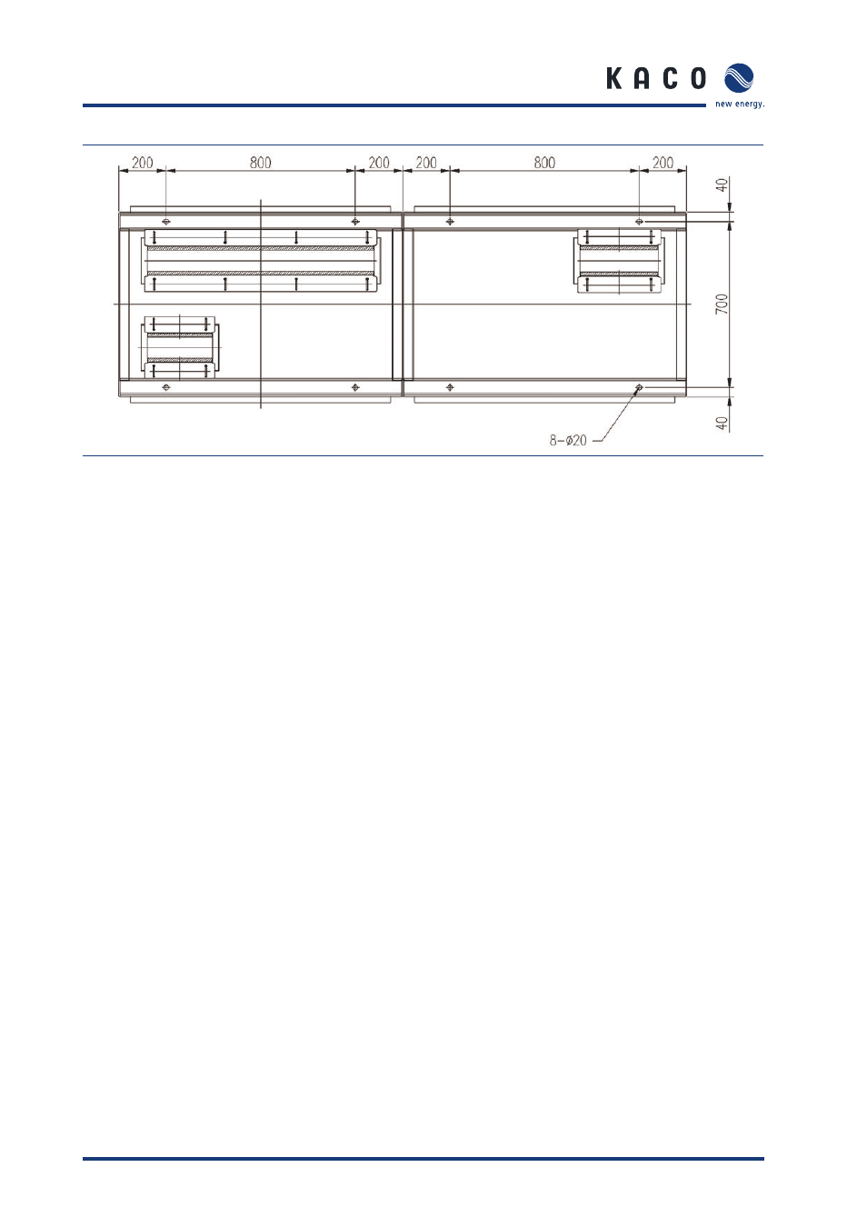
Figure 3: Dimension of the inverter base Bottom View (Anchor Bolt) [mm]

Advertising