Daktronics Sportsound 1500HD User Manual

Page 29

Advertising
background image

7+(&21&(376(;35(66('$1''(7$,/66+2:1217+,6

'5$:,1*$5(&21),'(17,$/$1'35235,(7$5<'2127

5(352'8&(%<$1<0($16:,7+2877+((;35(66('

:5,77(1&216(172)'$.7521,&6,1&

&23<5,*+7'$.7521,&6,1&

'$.7521,&6,1&

127(6

5()(5(1&(

5()(572'$.7521,&65,6(5',$*5$0)25$//(/(&75,&$/

32:(5$1''$7$63(&,),&$7,216

7+(6+2:16<67(00867%($33529('%<7+(&86720(5

$1'$//%$6(68332576758&785(0867%(&(57,),(',17+(

67$7(,1:+,&+,7,6,167$//('%<$48$/,),('6758&785$/

(1*,1((5%()25()$%5,&$7,2125(5(&7,21

*(1(5$/127(6

$//',0(16,216$5(,1)((7$1',1&+(6

5()(572,167$//$7,21$1'0$,17(1$1&(0$18$/)25

&203/(7(,167$//$7,21,16758&7,216

6281'&$%,1(7127(6

'$.7521,&66281'&$%,1(7,667((/&216758&7('

6.(/(721:,7+0(7$/3$1(/,1*)$67(1('72,76(;7(5,25

5()(5(1&('5$:,1*180%(56)25)87+(5

'(7$,/6'5$:,1*6



/,)7,1*32,176$5(3529,'('%<'$.7521,&6:+(1/,)7,1*

86(r25*5($7(5)5207+(+25,=21&$%/(6<67(0

3$,17&2/25

63($.(5&$%,1(7&2/2532:'(5&2$7%/$&.

6758&785$/127(6

)$%5,&$7,21$1'(5(&7,216+$//&21)250727+(/$7(67

(',7,212)$,6&63(&,)&$7,216

$//:(/',1* 6+23$1'),(/' 6+$//%(3(5)250(',1

$&&25'$1&(:,7+$:6'/$7(67(',7,2163(&,),&$7,216%<

$&(57,),(':(/'(586,1*(;;(/(&752'(6

6833257,1*6758&785(0867127,17(5)(5:,7+

(/(&75,&$/&211(&7,2166+2:1,1%277209,(:

7+(6758&85(:,//:,7+67$1'

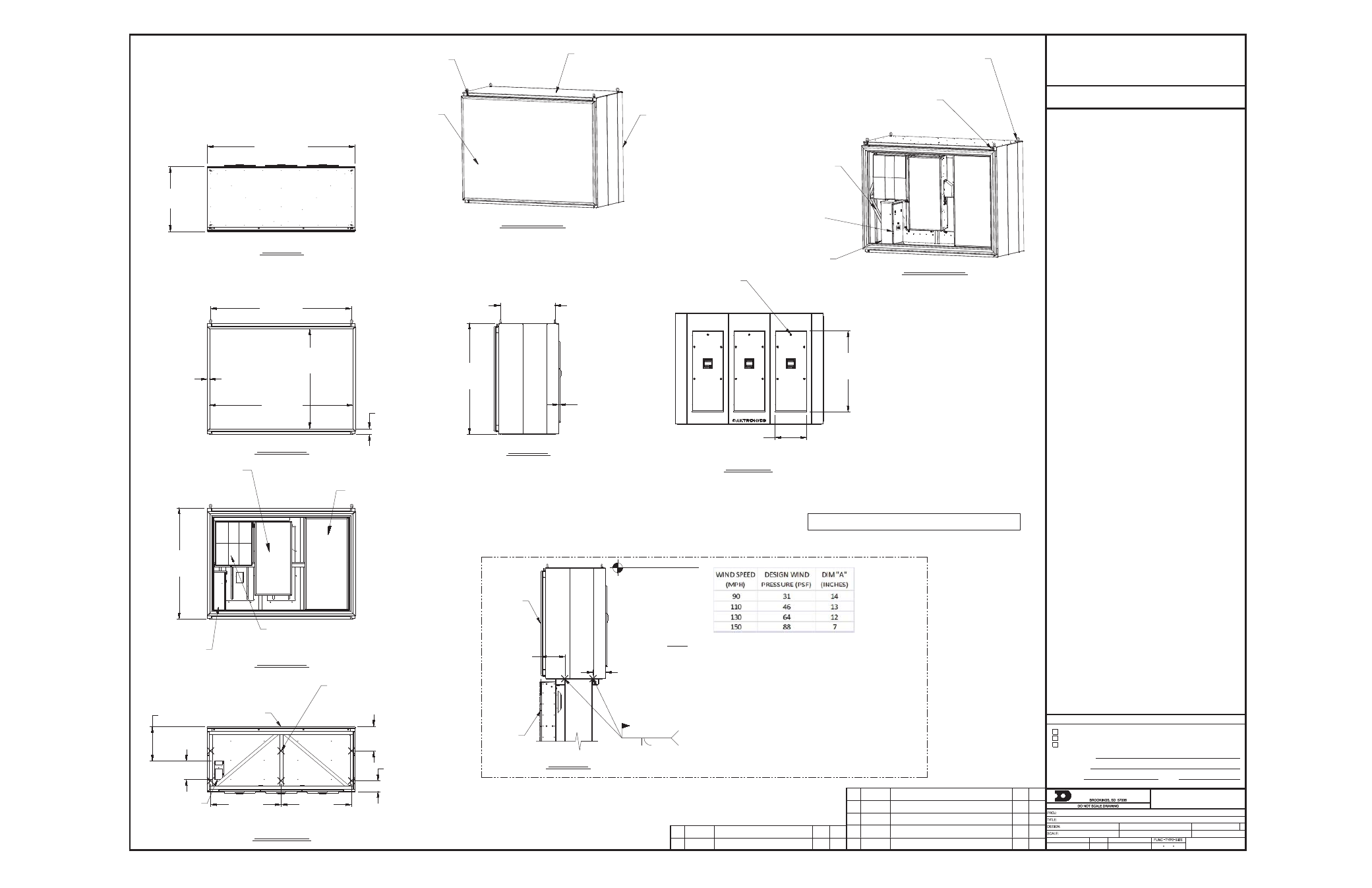
$03+ 6(&*867 '(6,*1:,1'63(('

:,7+29(5$//'(6,*135(6685(2)36)

$&&25',1*72$6&( (;32685(& 

7+('(6,*1:,1'35(6685(6:(5(6+,)7('$1'$'-867('

72$&&2817)25$6&(35(6&5,%('2))6(7())(&76

7+(6758&785(+$6%((1'(6,*1('726833257

$'(6,*1522)612:/2$'2)36)

7+(6758&785(+$6%((1'(6,*1('726833257/$7(5$/

6(,60,&/2$',1*(4$8/727,0(6*5$9,7<

($&+/2&$7,21$1'86(+$681,48(/2$',1*

5(48,5(0(176$1'7+(6833257,1*6758&785(6+$//%(

(9$/8$7(')25($&+'$.7521,&6$6680(6125(63216,%,/,7<

)257+($'(48$&<2)7+(6833257,1*6758&785(72

68332577+(63($.(5&$%,1(7

352-(&75(63216,%,/,7<

'$.7521,&6 $1'&86720(568%&2175$&72566+$//

9(5,)<$//(;,67,1*&21',7,216$1'',0(16,21635,2572

,167$//$7,21

$//68%&2175$&72566+$//3(5)250:25.,1

$&&25'$1&(:,7+26+$5(48,5(0(176$1'$1</2&$/&2'(6

7+$7$33/<

($&+68%&2175$&725,662/(/<5(63216,%/()25-2%6,7(

6$)(7<

(5(&7,2168%&2175$&725,662/(/<5(63216,%/()25

'(6,*1,1*$1'3529,',1*7(0325$5<%5$&,1*

($&+68%&2175$&725,65(63216,%/()257+(5(029$/

$1'',6326$/2):$67(0$7(5,$/6217+(-2%6,7(

727$/6281'6<67(0:(,*+7/%6

32:(5,1/2&$7,21

$039$&#

5(48,5('

',0$

0$;,080

6((&+$57

127(6

',0$5(35(6(1767+(0$;,080',0(16,21)5207+(%$&.2)6281'6<67(072

%$&.:(/'/2&$7,212)$77$&+726758&785(3(5'(6,*1:,1'35(6685(

7+($77$&+726758&785(6+2:1,6)25&21&(378$/385326(621/<7+(

$335235,$7(/2$',1*&21',7,216$1'7+(6,=(2)7+($77$&+726758&785(6+$//

%((9$/8$7(')25($&+86(2)7+,66<67(0$1',6127(9$/87(',17+,6'5$:,1*

7239,(:

)52179,(:

)52179,(:

%277209,(:

6,'(9,(:

5($59,(:

,620(75,&9,(:

,620(75,&9,(:

 

>PP@

29(5$//:,'7+

 

>PP@

3,&.32,176

 

>PP@

0(6+%25'(5

 

>PP@

&23<$5($

 

>PP@

&23<$5($

 

>PP@

29(5$//

 '$.7521,&60,'5$1*(

63($.(5&$%,1(7

&$3$%/(2)$0$;,0802)

'(*5((69(57,&$/$'-8670(17

 '$.7521,&6/2:5$1*(

63($.(5&$%,1(7

:20(6+*5,//(

:20(6+*5,//(

67((/78%(&216758&7('

6281'&$%,1(76((

'$.7521,&66758&785$/

'5$:,1*6)25)857+(5

0(0%(56,=(6$1''(7$,/6

$/80,180

3$1(/6$77$&+('72

7232)&$%,1(7

&21&($/(')$67(1(5

$/80,1803$1(/6$77$&+('

216,'(6$1'%$&.

$&2867,&$/0(6+*5,//(

$57:25.72%($33529('%<

&86720(5

)5217*5,//()5$0(&$1%(5(029('

)2563($.(50(6+5(,167$//$7,21

 +$5':$5(6(7621723

 +$5':$5(6(7621%70

6(&85()5$0(7267((/&$%,1(7

*5,//()5$0($3352;/%6

 5($5$&&(66'225)256(59,&(

2),17(51$/&20321(176,1&$%,1(7

'2256&$1%(5(029('%<7851,1*

/$7&+(6:,7+$675$,*+7('*(

6&5(:'5,9(5$1'/,)7,1*'225

2872)%27720&+$11(/

 

>PP@

'225

 

>PP@

'225

 

>PP@

3,&.32,176

 

>PP@

29(5$//

 '$.7521,&6+,*+5$1*(

63($.(5&$%,1(7/,1($55$<

&$3$%/(2)$0$;,0802)

'(*5((69(57,&$/$'-8670(17

&21752/32:(5

&21752/

(1&/2685(

)52172)6281'

6<67(0

 

>PP@

 

>PP@

 

>PP@

0$;,080

7<3,&$/:(/''(7$,/)25($&+

0$,1%2772075$169(56(0(0%(5

/2&$7,216

 

>PP@

'225

632576281'&21752/(1&/2685(

63($.(5'$7$,1/2&$7,21

 :$8',2&$%/(3$,5$:*

 :),%(5&$%/(&25(

&$%/(3529,'('%<'$.7521,&6

,167$//('%<'$.7521,&6

68%&2175$&725

32:(5$1'6,*1$/

(175$1&(

'21272%6758&7

 

>PP@

 

>PP@

66+'

6281'

6<67(0

 

>PP@

0$;,080

9$5,286

',63/$<6



0,1

7<3,&$/21$//

 /2&$7,216

 5(029($%/(/,)7(<(6'(6,*1(')250$;

r6/,1*$1*/(:+(13266,%/(

86($3523(5/<6,=('635($'(5%($0

:+(1/,)7,1*6281'6<67(0

',0$

6((&+$57

0$;+(,*+7
 

 

>PP@

%25'(5

632576281'

+'

67$1'$5'6+23

'$7(

5(9

%<



0$5

.&6

$''(':(/'/2&$7,216&+$1*(':(/'6<0%2/

$''('32:(5$1'6,*1$/5(48,5(0(176

83'$7('5($5'2253$1(/

'$7(

5(9

%<



-81

.&6

83'$7('675,1*(5',67$1&(6$1'&2/801

6,=(63(56758&785$/&(57,),&$7,21'5$:,1*6

'$7(

5(9

%<



-81

'07

83'$7('6758&785$/'(6,*1$1'

$77$&+0(17&+$57

$33529('
$33529('$6127('
$33529('$6127(' 5(68%0,7

&203$1<

6,*1('

7,7/(

'$7(

68%0,77$/$33529$/

6,'(9,(:

'$7(

5(9

%<



-$1

-/5

83'$7(''5$:,1*3(55($5$&&(66'22583'$7(

7+(&21&(376(;35(66('$1''(7$,/66+2:1217+,6

'5$:,1*$5(&21),'(17,$/$1'35235,(7$5<'2127

5(352'8&(%<$1<0($16:,7+2877+((;35(66('

:5,77(1&216(172)'$.7521,&6,1&

&23<5,*+7'$.7521,&6,1&

'$.7521,&6,1&

&+

'5$:1

'$7(

6+((7

-2%12

5(9

632576281'6<67(06

6+23'5$:,1*6281'6<67(0+'

.6&+1$%

129

3

(  &

 

.6&+1$%







127(

7+(/,)7(<(6217+()52170(6+)5$0(6+28/'127%(

86(':+(1/,)7,1*7+(&$%,1(7,172326,7,217+(6($5(72

%(86('21/<:+(15(029,1*7+(0(6+)5$0()5207+(

&$%,1(7)250$,17(1$1&(385326(6

/($9(7+(6(/,)7(<(6217+(0(6+)5$0($)7(5

,167$//$7,21,6&203/(7(

'$7(

5(9

%<



-81

0%-

83'$7('723%70 6,'(9,(:6

'$7(

5(9

%<



2&7

.&6

83'$7('&$%,1(79,(:6:,7+1(:&57/(1&/

 >PP@

29(5$//:2'2256

'$7(

5(9

%<



-8/

.&6

83$'7('5($5$&&(66'2259,(:6:,7+1(:

/$7&+$1'+$1'/(

Advertising