Daktronics Sportsound 2000HD User Manual

Page 31

Advertising
background image

'$7(

5(9

%<



0$<

$)/

$''('$1$1/2*%$&.83&$%/(

%(7:((1-% -%

'$7(

5(9

%<



'(&

&-%

&+$1*('675$1'),%(572675$1'),%(5

'$7(

5(9

%<



-81

$06

$''(''(7$,/6$(

'$7(

5(9

%<



-$1

'&6

&+$1*('':*)520%72&

$'-867('/$<287$1'83'$7('32:(5'(7$,/6

$/62$''('),%(563/,&(%2;

7+(&21&(376(;35(66('$1''(7$,/66+2:1217+,6

'5$:,1*$5(&21),'(17,$/$1'35235,(7$5<'2127

5(352'8&(%<$1<0($16:,7+2877+((;35(66('

:5,77(1&216(172)'$.7521,&6,1&

&23<5,*+7'$.7521,&6,1&

'$.7521,&6,1&

&+

'5$:1

'$7(

6+((7

-2%12

5(9

632576281'6<67(06

6<67(05,6(5+'

$/,&+7

$35

3

5  &

121(

$/,&+7





,167$//('%<

&20321(17

'(6&5,37,21

0$18)$&785( 6

3529,'('%<

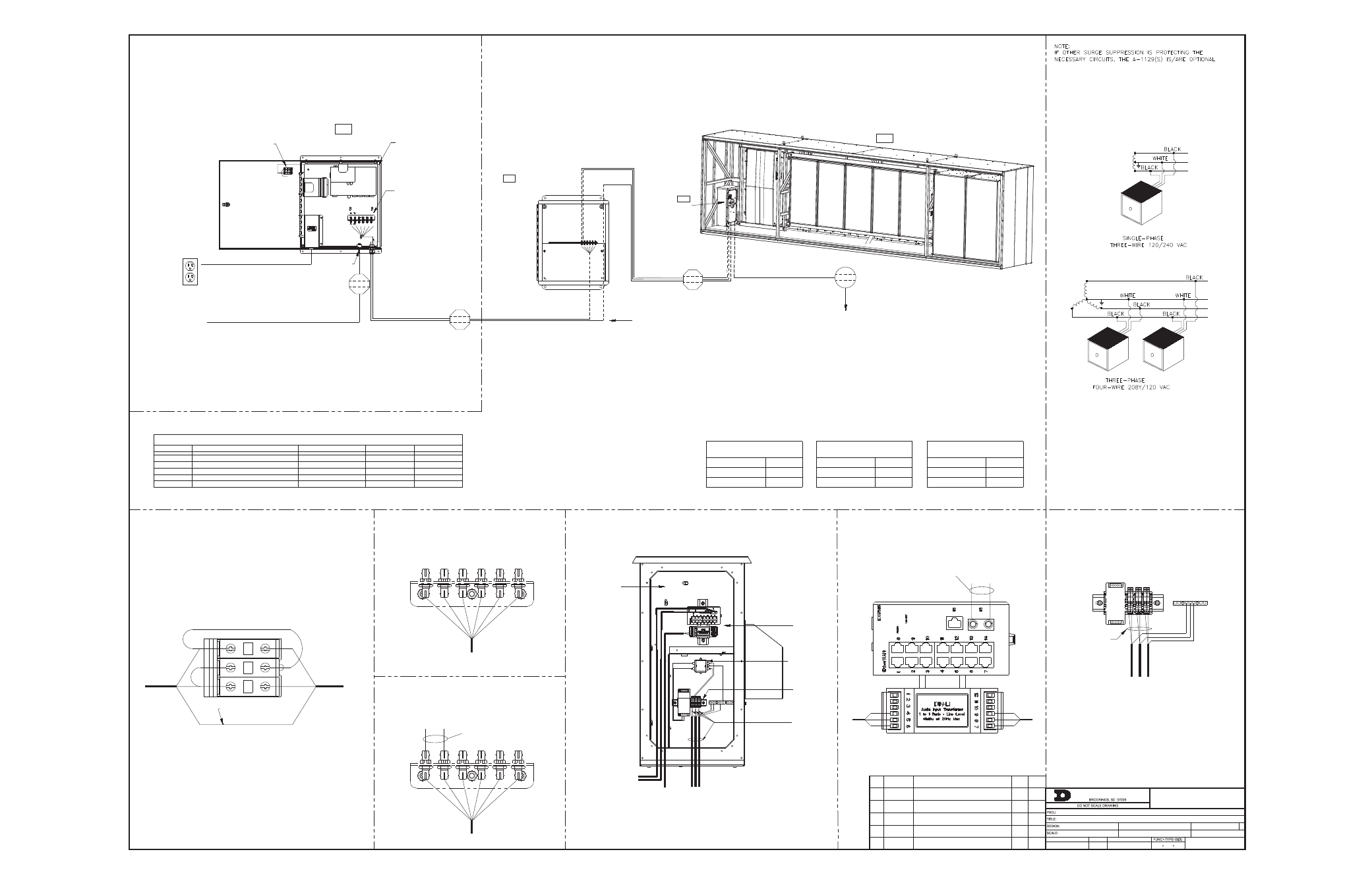
&20321(17,'(17,),&$7,21/(*(1'

&$%

+'6(5,(6&$%,1(7

$

'$.7521,&6

27+(56

-%

$1$/2*%$&.83),%(5%2;

$

'$.7521,&6

27+(56

-%

&21752/(1&/2685(

$

'$.7521,&6

'$.7521,&6

-%

&21752/

(1&/2685(

'(7$,/'

0$;,080:$776

$03(5(63(5/,1(

6<67(092/7$*(

180%(52)32/(6

:,5(6*1'

727$/32:(55(48,5(0(176

&,5&8,7







:

$

'(6

$#

'(6

 9$&'(',&$7('&,5&8,76

+2762872)3+$6(*1')25($&+

$685*(68335(6625,672%($77$&+('$7

7+(%5($.(53$1(/7+$7)(('67+(6(&,5&8,76

'$.7521,&6(/(&75,&$/68%&2175$&725

5(63216,%/()25$&211(&7,2186('(7$,/

*)253523(5&211(&7,21

6((':*

)256<67(0(/(&75,&$/ $8',2127(6

0$;,080:$776

$03(5(63(5/,1(

6<67(092/7$*(

180%(52)32/(6

:,5(6*1'

727$/32:(55(48,5(0(176

&,5&8,7







:

$

0$;,080:$776

$03(5(63(5/,1(

6<67(092/7$*(

180%(52)32/(6

:,5(6*1'

727$/32:(55(48,5(0(176

&,5&8,7







:

$

&$%

'(7$,/*

$

685*(68335(6625

'(7$,/%

),%(53$7&+

3$1(/7(50,1$7,21

'(7$,/)

7%

32:(57(50,1$7,21

*5281'

%/8 25* *51

%51

6/7

:+7

6,*1/2&$7,21'(7$,/6

-%

),%(563/,&(%2;

$

'$.7521,&6

'$.7521,&6

+27

/(*6

'(7$,/'

&21752/(1&/2685(

$1$/2*

%$&.83

)520-%

7%

'(7$,/)

)520(/(&75,&$/

6(59,&(

),%(5

)520-%

'(7$,/(

$ 7

),%(5 $1$/2*%$&.83&211(&7,21

7;

'(6

&3

'(6

-%

'(6

3;)

'(6

),%(563/,&(%2;

'(7$,/&

3$667+58

7;5;

:,5(7$*6

'(7$,/6)25:,5(7$*6

':*

'$.7521,&6



7+,66,'(

)$&725<

7(50,1$7('

'(7$,/&

),%(563/,&(%2;

%/8 25* *51

%51

6/7

:+7

7;

5;

: ),%(53$7&+

&$%/(672-%

$

7

'(7$,/(

6322/$1'

6(&85(

(;&(66),%(5

*1'

5('

%/.

7+,66,'(

)$&725<

7(50,1$7('

*1'

5('

%/.

$1$/2*

%$&.83

)520-%

7;

5;

: ),%(5

3$7&+&$%/(6)520

-%

5;

:
:

:#

5('

%/.

*1'

),(/'7(50,1$7,21

62/'(5:,5(672*(7+(5

7+,66,'(

)$&725<

7(50,1$7('

5('

%/.

'(7$,/$

$1$/2*%$&.836:,7&+7(50,1$7,21

'21275(029(-803(5:,5(6













:

$11281&(5 6/2&$7,21'(7$,/6

6:7

'(7$,/$

-%

 $03'83/(;

5(&(37$&/(%<&86720(5

02817),%(5%2;:,7+,1 2)5(&(37$&/(

72$8',2

5$&.

6<67(0

$8',2

15

;%

'$.

),%(5&219(56,21%2;

:

:

)33

'(7$,/%

127(

5287($1$/2*%$&.83

:,5($66+2:1

$

'$7(

5(9

%<



2&7

&-%

$''('$

=,37,(6

'$7(

5(9

%<



)(%

&-%

$''('127(72'(7$,/*

Advertising