1 calibrar o anemómetro, Preparação do anemómetro e do pluviómetro – Auriol H13726 User Manual
Page 54

54 PT
Vista geral do aparelho / Preparação do anemómetro e do pluviómetro ...
Tecla
Premir 1 x
Premir
durante
aprox. 3 s.
WIND UNIT
Configuração
da unidade da
velocidade do
vento (Beaufort,
mi / h, m / s,
km / h ou nós)
RAIN UNIT
Configuração
da unidade de
medição da
quantidade de
chuva (mm ou
polegadas)
Procura do sinal
de radiofrequên-
cia DCF-77
ZONE
Mudança entre
a hora local e a
hora universal
Configuração
da hora univer-
sal
C / F
Mudança de °C
para °F
SNOOZE /
LIGHT
Função snooze/
iluminação de
fundo
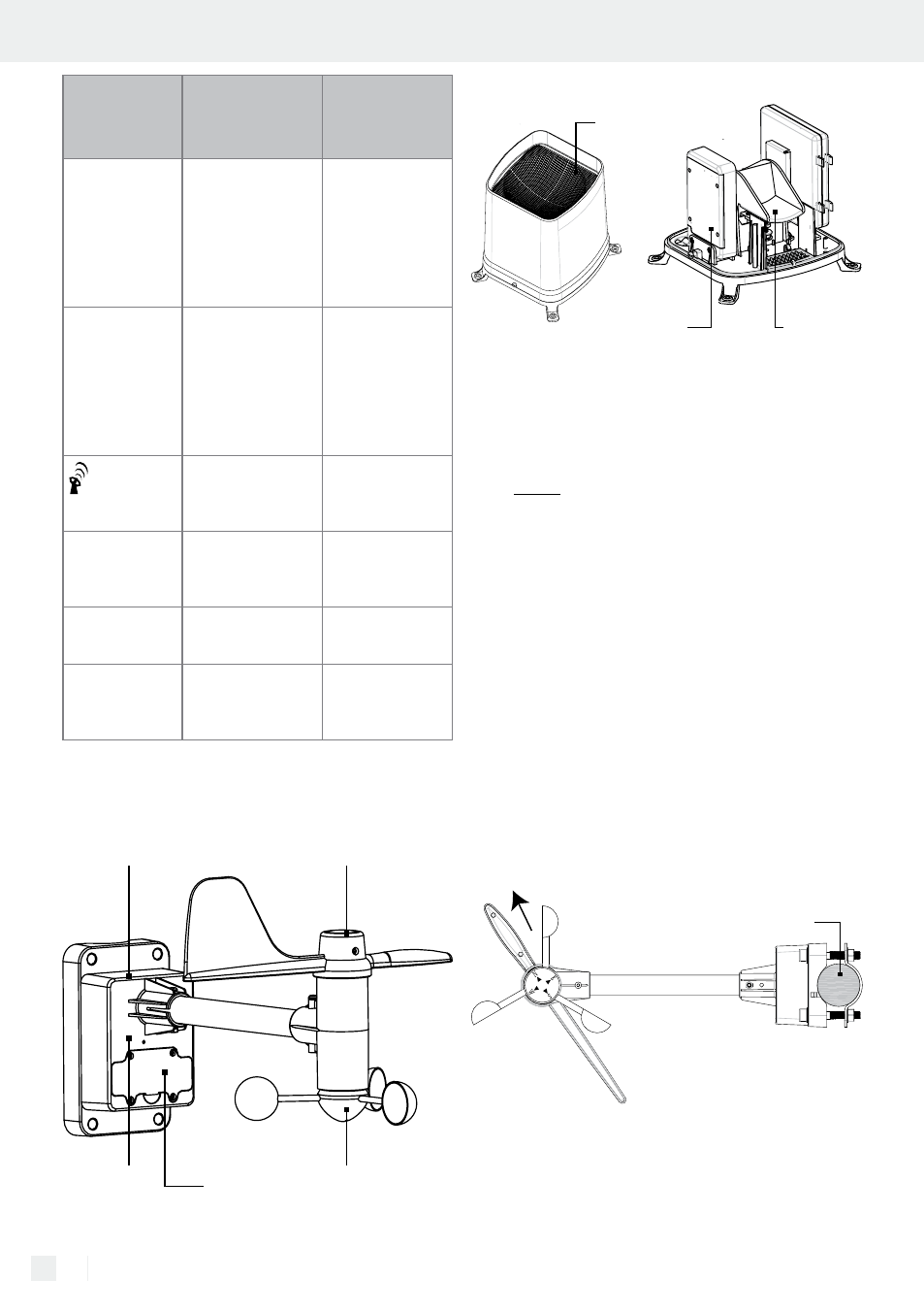
Anemómetro:
Cata-vento com
bússola integrada
Roda eólica
Compartimento
da pilha
Caixa com medidor da tempera-
tura e da humidade integrado
LED do sinal
de emissão
Pluviómetro:
Pluviómetro
de báscula
Compartimento
da pilha
Filtro de folhas
11. Preparação do anemómetro
e do pluviómetro, bem como
registo na estação meteoroló-
gica
11.1 Calibrar o anemómetro
O anemómetro tem de ser novamente calibrado após
cada substituição das pilhas. Proceda da seguinte
forma:
– Antes de colocar as pilhas oriente o cata-vento
para Norte.
– Certifique-se de que a roda eólica não está em
movimento.
– Coloque as pilhas de acordo com a polaridade
(para tal, consulte Anemómetro no ponto 9.
Colocação e substituição das pilhas).
– O LED do sinal de emissão acende por breves
instantes. O anemómetro está agora calibrado.
Norte
HASTE