Daktronics Sportsound Indoor (SSN-100/150) User Manual

Page 29

Advertising
background image





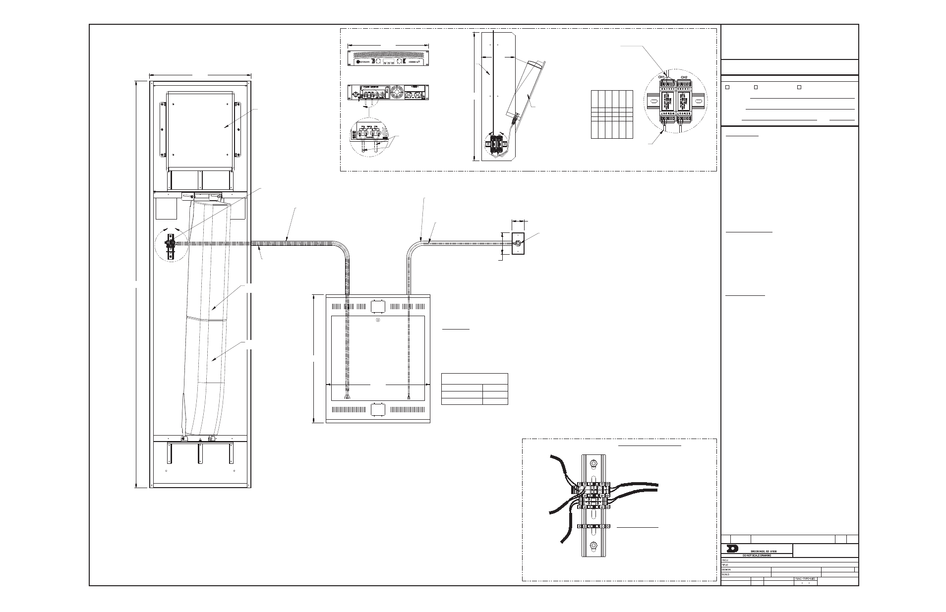
63($.(5127(6

 63($.(5(1&/2685(3529,'('%<'$.7521,&6$1'

,167$//('%<,167$//68%&2175$&725)2//2:

'$.7521,&6'5$:,1*)253523(5,167$//$7,21

352&('85(

 7(50,1$/%/2&.3529,'('21%2'<2)(1&/2685(72

7(50,1$7(63($.(5&$%/(

 5(029(*5,//()$&(72*$,1$&&(667263($.(5

7(50,1$7,215()(5726+23'5$:,1*)25*5,//5(029$/

 '5,//+2/(7+528*+%2'<2)(1&/2685()25&21'8,7

,167$//$7,21

 620(6,7(60$<+$9(&2/80163($.(5(;326('$1'127

,167$//,1$63($.(5(1&/2685(,)627(50,1$7,21

',5(&77263($.(55(48,5(')2//2:0$18)$&785(5 6

,16758&7,216213523(57(50,1$7,21

$03/,),(55$&.127(6

 $03/,),(57,/72875$&.3529,'('%<'$.7521,&6$1'

,167$//('$66+2:121':*

 63($.(5:,5(7(50,1$7('',5(&7/<72$03/,),(53(5

'(7$,/6+2:1

 6,*1$/:,5(7(50,1$7('727(50,1$/%/2&.3(5'(7$,/

6+2:1

 .12&.2876217232)5$&.72$&&(379$5<,1*&21'8,7

6,=(6

,13873/$7(127(6

 6,*1$/);/5,13873/$7(02817('3(5&86720(5 6

',5(&7,217<3,&$//<02817('72:$//%2;25)/225%2;

,1&/26(352;,0,7<2)&21752//2&$7,21

 ,13873/$7(3529,'('%<'$.7521,&6$1',167$//('72

*$1*5(&(37$&/(%2;%<,167$//$7,2168%&2175$&725

,167$//68%&2175$&725723529,'(%2;

 6,*1$/&$%/(,662/'(5('72%$&.2);/5-$&.

6(('5$:,1*'(7$,/2)3/$7($1';/5-$&.)253,1287

'5$:1

'$7(

6+((7

-2%12

5(9

'$.7521,&6$8',26<67(06

5,6(567$1'$5',1'2256281'6<67(0661

'75(0/

-8/

3

5  &

 

'75(0/





632576281'

,1'225$8',26<67(0

661

$33529('

$33529('$6127('

$33529('$6127(' 5(68%0,7

&203$1<

6,*1('

7,7/(

'$7(

68%0,77$/$33529$/

63($.(5&$%,1(7

6+2:1:,7+*5,//(5(029('

5()(5(1&(3$&.(7$

/$<2879,(:

$03/,),(55$&.

5()(5(1&(3$&.(7$

/$<2879,(:

7(50,1$/%/2&.35(:,5('

,1)$&725<7263($.(56

 3$,5$:*63($.(5&$%/(

)52063($.(5&$%,1(772$03

5$&. '$.:

72&21'8,7,167$//(')520$03

5$&.7263($.(5(1&/2685(

3529,'('$1',167$//('%<

,167$//$7,2168%&2175$&725

63($.(57(50,1$7,21

$03/,),(57(50,1$7,21

$

'(7$,/$

6&$/(

:+

%.

:

7(50,1$7,21127(6

-$&.(7&2/2566+28/'0$7&+21/()7$1'

5,*+76,'(2)7(50,1$/672(1685(3523(5

32/$5,7<

675,363($.(5&$%/($1'7,*+7(1'2:172

7(50,1$/%/2&.6$66+2:1

63($.(5&$%/(63(&,),&$7,21

5(&200(1'('&$%/(:(673(11

675$1'('%$5(&233(5&21'8&7256

816+,(/'(':,7+$129(5$//-$&.(7

 63($.(5-%/$6%

'$.$

 63($.(5-%/-((;7(16,21

'$.$

 63($.(5-%/-

'$.$







$03/,),(5

'$.$

$035$&.

'$.(1

/()76,'(





)52179,(:

5($59,(:

%

'(7$,/%

6&$/(

63($.(5&$%/( :

&2/80163($.(5:,5('72&+

68%:22)(572&+

$8',26,*1$/&$%/( :

),(/'7(50,1$7('7275$16)250(5

&+ 

,)7+(5(,6$6(&21'$5<&21752//2&$7,21

7(50,1$7($'',7,21$//2&$7,2172&+

7+(&21&(376(;35(66('$1''(7$,/66+2:1217+,6

'5$:,1*$5(&21),'(17,$/$1'35235,(7$5<'2127

5(352'8&(%<$1<0($16:,7+2877+((;35(66('

:5,77(1&216(172)'$.7521,&6,1&

&23<5,*+7'$.7521,&6,1&

'$.7521,&6,1&

72$

63($.(5

72$

63($.(5

72

$03/,),(5

72$

68%:22)(5

:+

%.

:

7+(&21&(376(;35(66('$1''(7$,/66+2:1217+,6

'5$:,1*$5(&21),'(17,$/$1'35235,(7$5<'2127

5(352'8&(%<$1<0($16:,7+2877+((;35(66('

:5,77(1&216(172)'$.7521,&6,1&

&23<5,*+7'$.7521,&6,1&

'$.7521,&6,1&

&+

0$;,080:$776

$03(5(63(5/,1(

6<67(092/7$*(

180%(52)32/(6

:,5(6*1'

727$/32:(55(48,5(0(176

&,5&8,7







:

$

32:(5127(

32:(5&25',16,'(2)(1&/2685(

675$,15(/,()$1'$033/8*,6

6833/,(',)(;7(5,2532:(5

&211(&7,21,65(48,5('

6,*1$/,13873/$7(

3$57(&

/$<2879,(:





72&21'8,7,167$//(')520$03

5$&.726,*1$/,13873/$7(

3529,'('$1',167$//('%<

,167$//$7,2168%&2175$&725

 3$,5$:*6,*1$/&$%/(

)520$035$&.72,13873/$7(

'$.:

&211(&7('72$8',2287

217+(&21752/5$&.

3,1287

3,1 6+,(/'

3,1  5('

3,1  %/$&.

'$7(

5(9

%<



0$<

/&3

5(3/$&('7%$1'7%:,7+7

)$&725<:,5('72

$03/,),(5

&

'(7$,/&

6&$/(

     

     

6+,(/'

%/.

5('

6+,(/'

5('

%/.

75$16)250(5

:,5,1*',$*5$0

Advertising