6 electrical installation – Yaskawa AC Drive-Option BRAKING UNIT-CDBR Spec.D User Manual

Page 45

Advertising
background image

6 Electrical Installation

YASKAWA ELECTRIC TOBP C720600 01C 1000-Series Option CDBR-†D, LKEB-† Installation Manual

45

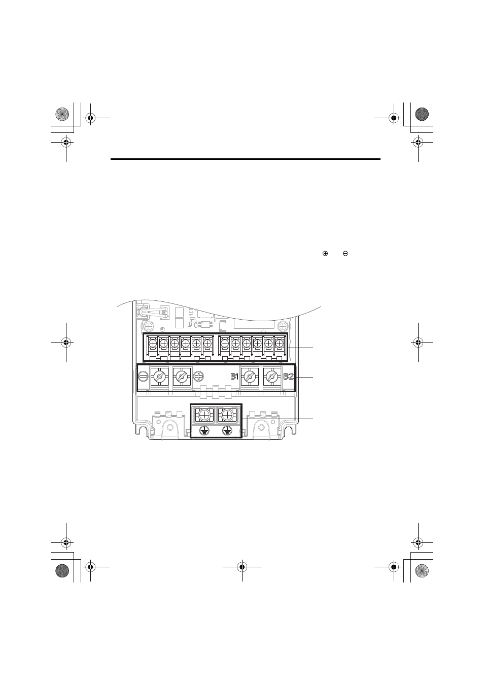
Wiring Procedure

WARNING! Fire Hazard. Tighten terminal screws to the specified tightening torque. Loose electrical

connections could result in death or serious injury by fire due to overheating. Tightening screws beyond the

specified tightening torque may cause erroneous operation, damage the terminal block, or cause a fire.

Refer to

Wire Gauge and Torque Specifications on page 51

for details.

1.

For all CDBR wiring refer to

Table 11

for wire gauge and torque specifications and

refer to

Figure 21

for the drive and option connection diagram

2.

Connect ground wiring to the ground terminals. Refer to

Table 9

for descriptions of

CDBR Braking Unit Main Circuit Terminals.

3.

Connect main circuit wires to the main circuit terminals B1, B2, and . Refer to

Table 9

for descriptions of CDBR Braking Unit Main Circuit Terminals.

4.

Connect control circuit wiring to the control circuit terminals. Refer to

Table 10

for

details on CDBR braking unit control circuit terminals.

5.

Ensure all main circuit and control circuit wires exit through the openings in the
bottom of the CDBR Braking Unit enclosure.

Figure 17

Figure 17 Wiring the Terminals

6.

Reattach the bottom and front cover. After wiring to the CDBR Braking Unit and
drive is complete, double-check all connections before reattaching covers.

EC

EB

EA

MC

MB

MA

SC

SB

OUT2

OUT1

IN2

IN1

Control circuit terminals

Main circuit terminals

Ground terminals

TOBP_C720600_01C_3_0_E.fm 45 ページ 2013年10月7日 月曜日 午後2時20分

Advertising