4 jog operation using a digital operator – Yaskawa Sigma-5 Series User Manual:: For Use with Large-Capacity Models-Setup. Rotary Motors User Manual
Page 105

5 Trial Operation (Checking Servomotor Operation)
5-8
5.4
JOG Operation Using a Digital Operator
This section describes the procedure for executing a JOG operation using a digital
operator.
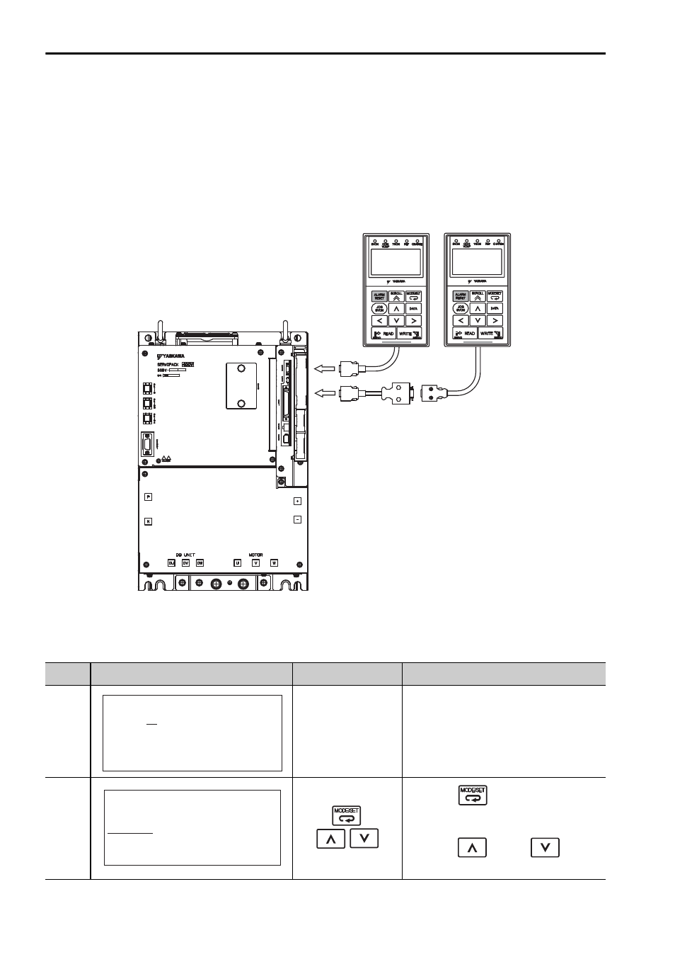
Connect the digital operator to the SERVOPACK CN3 connector.
The digital operator can be connected or removed while the SERVOPACK and the
converter power is ON.
SGDV SERVOPACK
Σ-III series
JUSP-OP05A
Digital Operator
Σ-V series
JUSP-OP05A-1-E
Digital Operator
Digital operator conversion conneotor
Model: JZSP-CVS05-A3-E
Insert securely into
SERVOPACK CN3 connector.
Step
Display after operation
Keys
Operation
1
–
Turn ON the power to the SERVO-
PACK and the converter. A message
saying that the file list is being loaded
will appear and then the parameter/
monitor mode will appear.
2
Press the
Key to view the
main menu of the Utility Function
mode.
Press the
Key or
Key to
select Fn002.
㧮㧮ޓޓޓޓޓޓ㧙㧼㧾㧹㧛㧹㧻㧺㧙
㨁㨚㧜㧜㧜㧩㧜㧜㧜㧜㧜
㨁㨚㧜㧜㧞㧩㧜㧜㧜㧜㧜
㨁㨚㧜㧜㧤㧩㧜㧜㧜㧜㧜㧜㧜㧜㧜㧜
㨁㨚㧜㧜㧰㧩㧜㧜㧜㧜㧜㧜㧜㧜㧜㧜
B B
− F U N C T I O N −
F n 0 0 0 : A l m H i s t o r y
F n 0 0 2 : J O G
F n 0 0 3 : Z
− S e a r c h
F n 0 0 4 : P r o g r a m J O G