Ip00 enclosure drives, 2 mechanical installation – Yaskawa Z1000U User Manual

Page 49

Advertising
background image

n

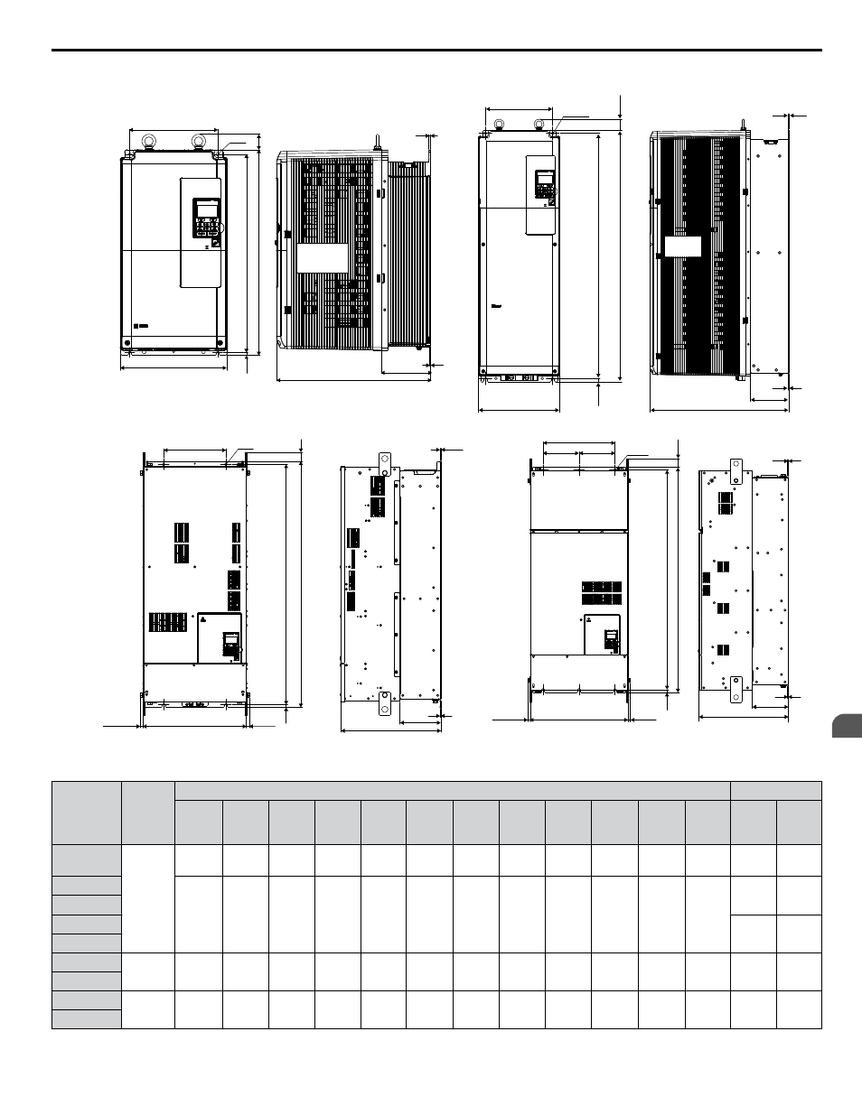
IP00 Enclosure Drives

W1

4-d

H

H1

H2

H4

W

D1

t1

D

t2

Figure

2

t1

H

H1

H2

W

D

D1

t2

W1

H4

4-d

Figure

1

W1

4-d

H4

H1

H

H2

Max 15 mm

W

Max 15

t1

D1

D

t2

Figure

3

(0.6 in)

(0.6 in)

Figure 4

W1

W2

W2

6-d

H4

H1 H

H2

Max 15 mm

Max 15 mm

t2

t1

D1

D

(0.6 in)

(0.6 in)

Table 2.4 Dimensions for IP00 Enclosure: 200 V Class

Drive Model

Figure

Dimensions mm (in)

Wt. kg (lb)

W

H

D

W1

W2

H1

H2

H4

D1

t1

t2

d

Models

2Ao/

2Po

Models

2Eo/
2W
o

2o0028A

1

250

(9.84)

480

(18.89)

360

(14.17)

205

(8.07)

463

(18.22)

6.5

(0.25)

40

(1.58)

100

(3.93)

2.3

(0.10)

4

(0.16)

7

(0.28)

20

(44)

21

(46)

2o0042A

264

(10.39)

650

(25.60)

420

(16.53)

218

(8.58)

629

(24.73)

11.5

(0.45)

40

(1.58)

115.5

(4.54)

2.3

(0.10)

4

(0.16)

10

(0.40)

32

(71)

33

(73)

2o0054A

2o0068A

35

(77)

36

(79)

2o0081A

2o0104A

2

264

(10.39)

816

(32.12)

450

(17.71)

218

(8.58)

795

(31.29)

11.5

(0.45)

40

(1.58)

124.5

(4.90)

2.3

(0.10)

2.3

(0.10)

10

(0.40)

60

(132)

63

(139)

2o0130A

2o0154A

3

415

(16.33)

900

(38.97)

403

(15.86)

250

(9.84)

966

(38.03)

11

(0.43)

40

(1.58)

165

(6.49)

4.5

(0.17)

3.9

(0.15)

12

(0.47)

110

(245)

115

(254)

2o0192A

2.2 Mechanical Installation

YASKAWA ELECTRIC TOEP C710636 10B Z1000U HVAC MATRIX Drive User Manual

49

2

Mechanical Installation

Advertising
This manual is related to the following products: