3) sgdv-d25a, 3wiring and connection, 2 system configuration diagram 3-15 – Yaskawa Sigma-5 User Manual: Setup for Linear Motors User Manual
Page 99

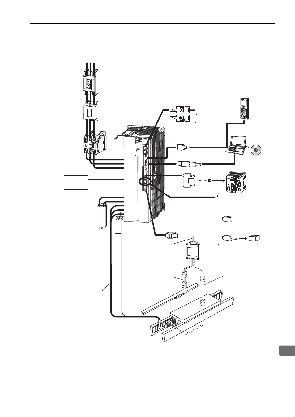
3.2 System Configuration Diagram
3-15
3
Wiring and Connection
(3) SGDV-D25A
∗1. Use a 24 VDC power supply with double insulation or reinforced insulation. (The power
supply is not included)
∗2. Before connecting an external regenerative resistor to the SERVOPACK, refer to 3.4 Con-
necting Regenerative Resistors.
∗3. The connected device and cable depend on the model of the linear scale.
24 VDC
power supply
∗
1
Noise filter
Molded-case
circuit breaker
MCCB)
Magnetic
contactor
I/O signal cable
Power supply
Three-phase 400 VAC
R S T
Protects the power
supply line by shutting
the circuit OFF when
overcurrent is
detected.
Used to eliminate
external noise from
the power line.
Turns the servo
ON and OFF.
Install a surge
absorber.
Personal
computer
Connection cable
for personal computer
Digital
operator
Connection cable
for digital operator
When not using the safety
function, use the SERVOPACK
with the safety function jumper
connector (JZSP-CVH05-E,
provided as an accessory)
inserted.
When using the safety function,
insert a connection cable
specifically for the safety function.
Safety function
devices
SGDV-
D25A
SERVOPACK
Host controller
Regenerative
resistor*
2
Connect to the
MECHATROLINK-III
Linear servomotor
main circuit cable
Serial converter unit
*
3
Cable for connecting a
serial converter unit
*
3
Linear servomotor
with core
Linear scale
(Not included)
Cable for connecting a
hall sensor
Cable for connecting a
linear scale
*
3