4 main circuit connection diagrams, 200 v class external heatsink cooling type, 200 v class open chassis type – Yaskawa Varispeed 626M5 User Manual

Page 59

Advertising
background image

3.3 Wiring Main Circuit Terminals

3 -19

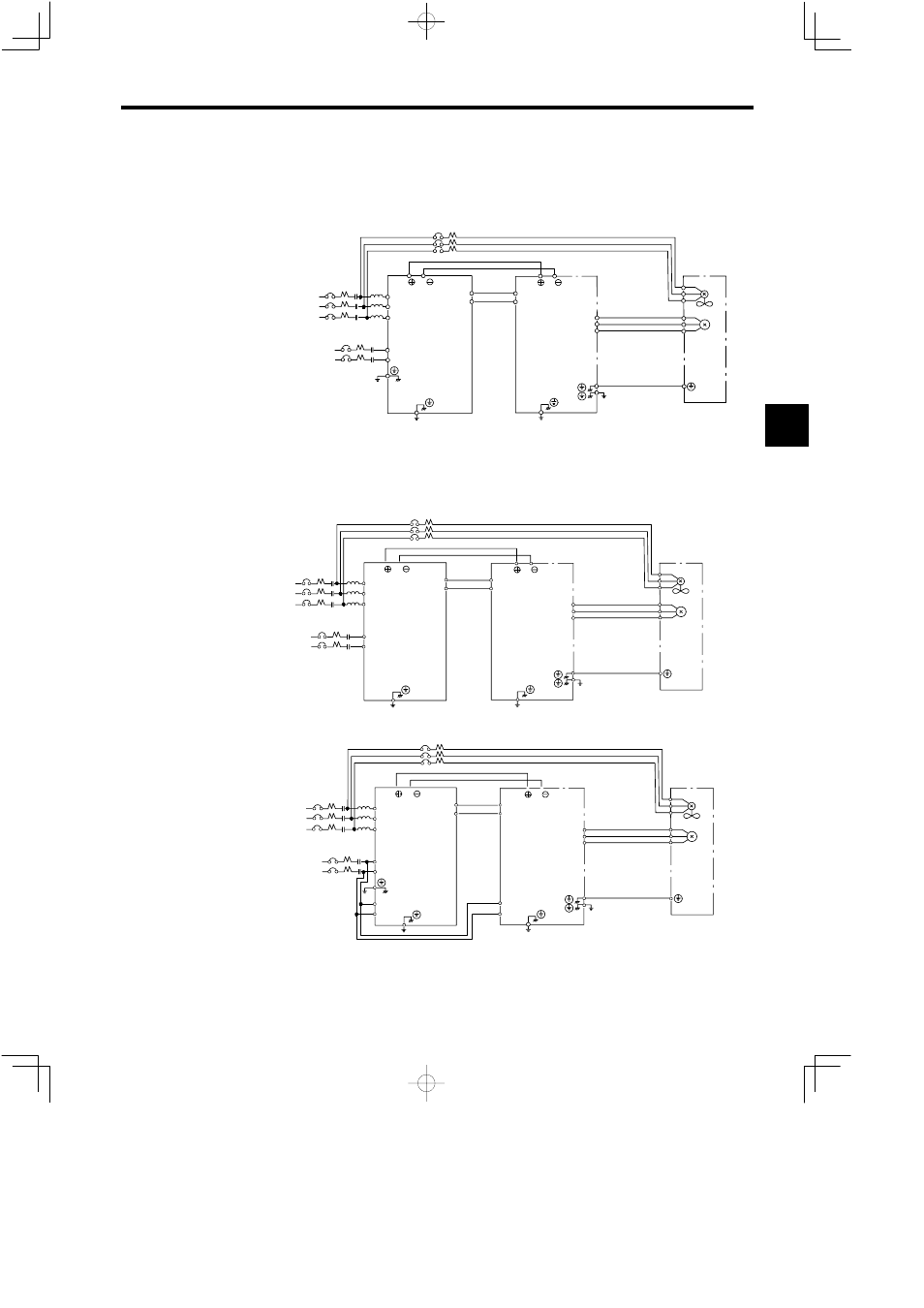
3.3.4 Main Circuit Connection Diagrams

The following diagrams show the main circuit connections.

J

200 V Class External Heatsink Cooling Type

3-phase

200 VAC

Single-phase

200 VAC

Converter (VS-656MR5)

CIMR-MR5j23P75 to 20375

Motor

Cooling fan

Inverter (VS-626M5)

CIMR-M5j23P75 to 20375

R
S

T

r
t

R/L1
S/L2
T/L3

A1/r
A2/t

(Note)

VS−656MR5

P/

N/

VS−626M5

P/

N/

P1

N1

P1

N1

U/T1

V/T2

W/T3

Z1

Z2

Z3

IM

U

V

W

3-phase

200 VAC

Note: No ground terminals are provided on the 23P7 through 27P5 models.

Fig 3.9

Main Circuit Connections for 200 V Class External Heatsink Cooling Type

J

200 V Class Open Chassis Type

Converter (VS-656MR5)

CIMR-MR5j23P70 to 27P50

Inverter (VS-626M5)

CIMR-M5j23P70 to 27P50

R
S

T

r
t

R/L1

S/L2

T/L3

A1/r
A2/t

VS−656MR5

P/

N/

VS−626M5

P/

N/

P1

N1

P1

N1

U/T1

V/T2

W/T3

Z1

Z2

Z3

IM

U

V

W

3-phase

200 VAC

Single-phase

200 VAC

Motor

Cooling fan

3-phase

200 VAC

Converter (VS-656MR5)

CIMR-MR5j20110 to 20370

Inverter (VS-626M5)

CIMR-M5j20110 to 20370

R
S

T

r
t

R/L1
S/L2
T/L3

A1/r
A2/t

VS−656MR5

P/

N/

VS−626M5

P/

N/

P1

N1

P1

N1

U/T1

V/T2

W/T3

Z1

Z2

Z3

IM

U

V

W

A12/r2
A22/t2

A11/r1
A21/t1

3-phase

200 VAC

Single-phase

200 VAC

Motor

Cooling fan

3-phase

200 VAC

Fig 3.10

Main Circuit Connections for 200 V Class Open Chassis Type

3

Advertising
This manual is related to the following products: