2 te 355 b – HEIDENHAIN TNC 335 Technical Manual User Manual
Page 82
Advertising

3-60
TNC 360
14 Dimensions
8/95
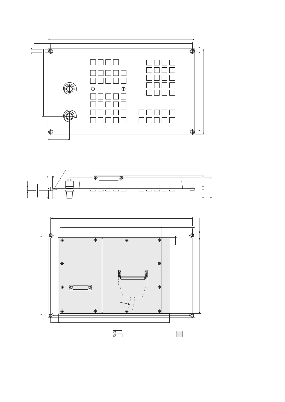
14.2.2 TE 355 B
50
+5
1.97"
+.20"
Ø10
DIA .394"
Ø8
+1
DIA.351"
+.04"
31
+5
1.16
+.19"
25
.98"
1
.40"
4
.157"
2
.079"
Dichtung 3 dick, im eingebauten Zustand 2 dick
GASKET .118" THICK INCORPORATED .079 THICK
Montagefläche
MOUNTING SURFACE
.02"
19
.748"
193
±
0.2
7.598"
±
.008"
300
±
0.5
11.81"
±
.020"
0.5
191
±
0.5
752"
±
.020"
338
±
0.2
13.307"
±
.008"
248
+1
9.76"
+.040"
75
±
0.4
2.95"
±
.016"
8.5
±
0.4
.335"
±
.016"
187.5
+1
7.38"
+.04"
R60
R2.36"
X2
X1
1
.040"
51
2.01"
66.5
2.62"
350
13.78"
338
±
0.2
13.307"
±
.008"
6
±
0.2
.236"
±
.008"
96.5
3.80"
5.5
.217"
6
±
0.2
.236"
±
.008"
193
±
0.2
7.598"
±
.008"
205
8.07"
Frontplattenausschnitt
FRONT PANEL OPENING
Advertising